" /> Menghitung Momen Dan Keseimbangan - TN Mesin
Home > Power Train dan Hydraulic > Fisika Teknik > Menghitung Momen Dan Keseimbangan

Menghitung Momen Dan Keseimbangan

Syarat keseimbangan untuk komponen gaya yang mempunyai titik tangkap sama dengan arah berlainan, adalah
o Jumlah gaya pada sumbu X = nol (ΣX = 0);
o Jumlah gaya pada sumbu Y = nol. (ΣY = 0 ).

Sedangkan untuk gaya gaya yang mempunyai titik tangkap berlainan , dimana titik tangkap gaya satu dengan titik tangkap lainnya mempunyai jarak tertentu , sehingga menimbulkan momen , oleh kerena itu untuk komponen gaya yang mempunyai titik tangkap berlainan selain ΣX = 0; ΣY = 0 . juga jumlah momen pada suatu titik sama dengan nol atau dapat di tulis ΣM =0. Juga jumlah gaya aksi sama dengan jumlah gaya reaksi .
Keterangan :
o Gaya reaksi adalah gaya yang berlawanan dengan gaya aksi ,
o Jumlah gaya aksi sama dengan jumlah gaya reaksi
o Jumlah gaya aksi dengan gaya reaksi sama dengan nol ,

Lihat gambar halaman berikut

image

Gambar 3.6 Gaya aksi dan reaksi

 

Menentukan Titik Tangkap Resultan Dengan Momen
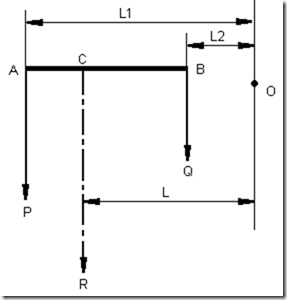
Untuk menentukan titik tangkap dan besarnya resultane dari gaya gaya yang mempunyai arah sama dengan titik tangkap berlainan dapat dilakukan dengan cara analisa dan cara lukisan . Cara analisa Untuk menentukan R yaitu :
R = P + Q
Sedangkan untuk menetukan titik tangkap resultan, yaitu jarak dari satu titik ke titik tangkap gaya/resultan yaitu dengan menggunakan persamaan momen yaitu Jumlah momen gaya terhadap suatu titik sama dengan aya resultan X jarak terhadap titik tersebut, lihat gambar berikut :

image

Gambar 3.9 Resultan dua gaya dengan arah yang sama